| NIVEAU | PIÈCE | SURFACE |
Appartement
MONTPELLIER (30230)
- 32 m²
- 2 pièce(s)
- 1 chambre(s)
- NC
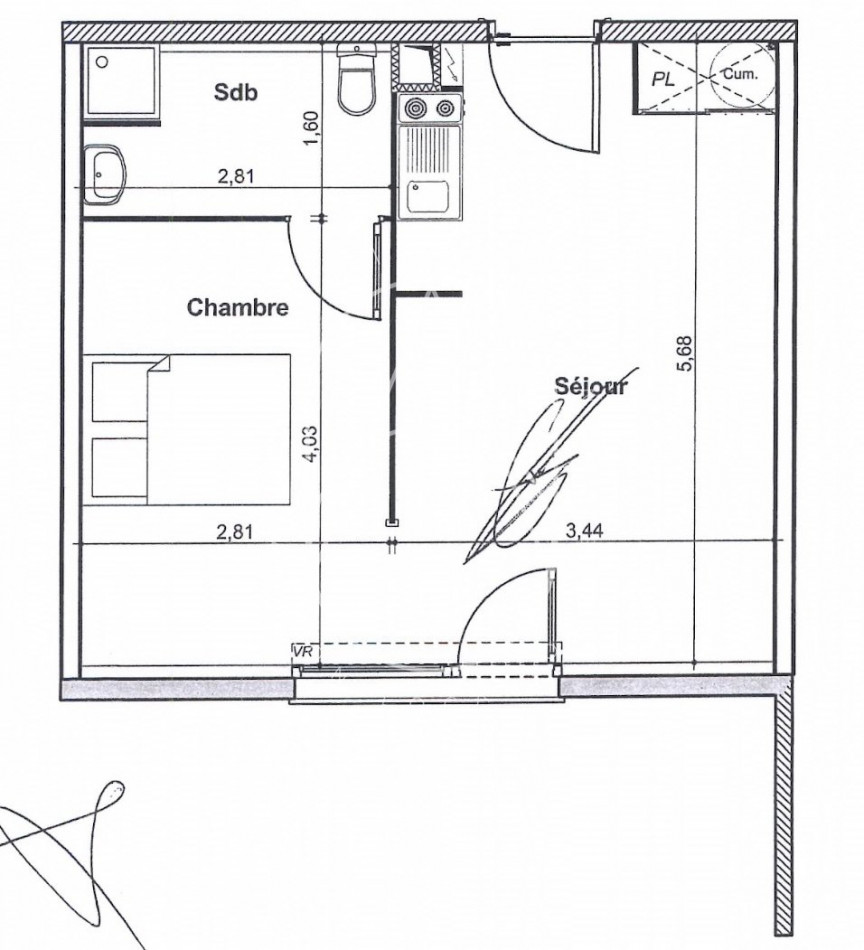
AO Immobilier vous propose à la vente un agréable appartement de 32,15 m², situé en rez-de-chaussée dans une résidence calme et bien entretenue au cœur de Rodilhan.
Ce bien se compose d’une pièce de vie lumineuse, d’une cuisine ouverte, d’une chambre séparée ainsi que d’une salle d’eau avec WC. Fonctionnel et bien agencé, il offre un cadre de vie idéal pour un premier achat, un pied-à-terre ou un investissement locatif.
L’appartement dispose également d’une place de parking privative, un véritable atout dans le secteur.
Une opportunité rare sur le marché de Rodilhan, alliant praticité, confort et emplacement recherché.
Bien soumis au statut juridique de la Copropriété. Pas de procédure en cours.
Honoraires : 5,26 % TTC à la charge de l’acquéreur Prix hors honoraires d’agence : 95 000 € AO IMMOBILIER - CONTACT AO IMMOBILIER 0467121095 - - Plus d'informations sur (réf. 345792790)
Notre barème d'honoraires
* Honoraires : 5.26% TTC inclus charge acquéreur (95 000 € hors honoraires).
cette annonce à un ami
Veuillez réessayer à nouveau




