| NIVEAU | PIÈCE | SURFACE |
Bureau
MONTPELLIER (34000)
- 265 m²
- NC pièce(s)
- NC chambre(s)
- NC
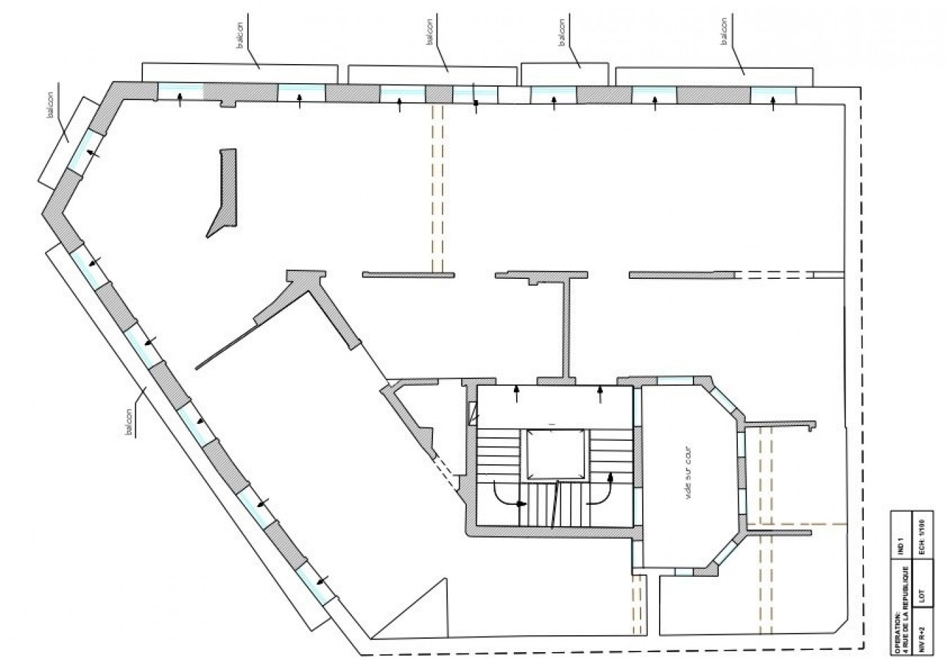
Plateau de bureaux à aménager – Adresse prestige République / Comédie – Montpellier
AO Immobilier vous présente un plateau de bureaux de standing à aménager, situé au 2? étage d’un magnifique immeuble haussmannien au 4 rue de la République, en plein cœur du centre historique de Montpellier.
Idéalement positionné entre la Gare Saint-Roch, la Place de la Comédie et les Halles Laissac, cet emplacement offre une adresse emblématique et un environnement professionnel dynamique, à proximité immédiate des tramways, parkings et commerces du centre-ville.
Description du bien :
Le plateau, livré brut à aménager, bénéficie d’une surface optimisée et rationnelle, permettant la création d’un espace de travail à la fois prestigieux et fonctionnel.
Une proposition d’aménagement a été étudiée pour accueillir environ 20 postes de travail, comprenant :
3 bureaux de direction ou associés,
17 postes collaborateurs,
1 salle d’accueil / d’attente,
1 salle de réunion,
1 zone reprographie / stockage,
L’immeuble présente une façade rénovée, une cage d’escalier mise en valeur, et des parties communes soignées. Les réseaux sont en attente, permettant un aménagement sur mesure selon les besoins du futur occupant.
Atouts :
Adresse recherchée entre Comédie et Gare Saint-Roch,
Immeuble haussmannien de caractère,
Volumes et hauteur sous plafond remarquables,
Potentiel d’aménagement premium,
Emplacement central et vivant, à deux pas de toutes commodités.
Un lieu de travail à fort potentiel, idéal pour une société de conseil, d’architecture, de communication ou toute profession libérale souhaitant s’implanter dans un cadre représentatif et exclusif.
Arnaud Briffault – AO Immobilier 06 51 57 43 29
Prix TTC – Honoraires à la charge du vendeur
Notre barème d'honoraires
cette annonce à un ami
Veuillez réessayer à nouveau










