| NIVEAU | PIÈCE | SURFACE |
Appartement
JUVIGNAC (34990)
- 65 m²
- 3 pièce(s)
- 2 chambre(s)
- 21 m²
Juvignac
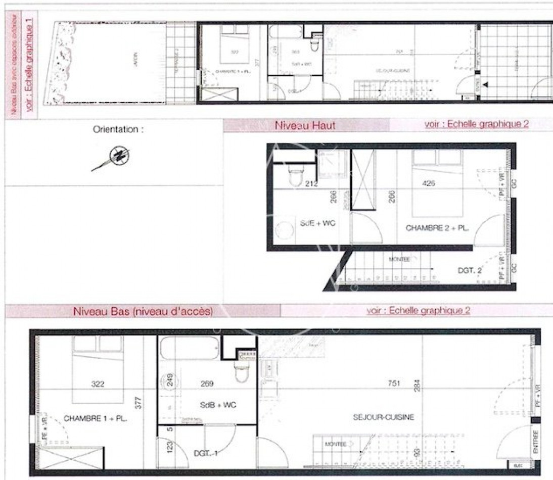
AO Immobilier vous propose à la vente un T3 en RDC duplex de 65,10 m2 dans une résidence sécurisée.
L'appartement se compose d'une pièce de vie de 25,35 m2 ainsi qu'une suite parentale avec salle de bains et wc en RDC.
À l'étage, nous retrouvons une seconde chambre avec une salle d'eau et wc.
L'appartement étant traversant, il dispose d'une terrasse pour chaque extrémités ainsi qu'un jardin de 21,7 m2.
Un box est compris avec l'appartement.
Proche de toute commodité (commerce, tram ligne 3, bus arrêt saturne)
À venir visiter sans plus tarder !
Honoraires : 3.98 % TTC inclus charge acquéreur (226 000 € hors honoraires)
AO IMMOBILIER - SANCHEZ OLIVIER - 06 62 31 98 45 - Plus d'informations sur (réf. 345792046)
Notre barème d'honoraires
* Honoraires : 3.98% TTC inclus charge acquéreur (226 000 € hors honoraires).
cette annonce à un ami
Veuillez réessayer à nouveau




















